LIBERTE 20
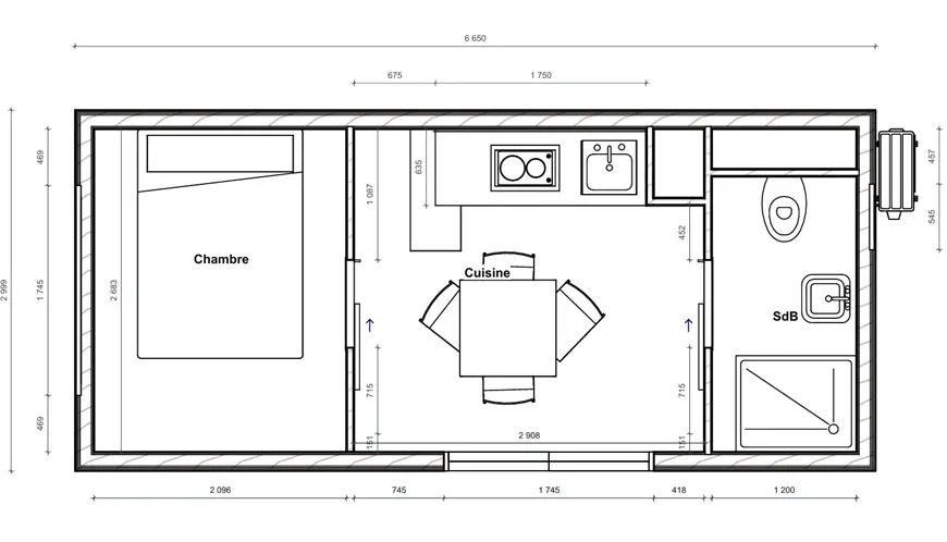
3 x 6.65m
20 m²
à partir de 33 041€ soit 367€/mois
Liberte 20, bien au-delà du fonctionnel !
Avec en option une cuisine moderne, sa salle d’eau et ses sanitaires intégrés, ce studio de jardin conjugue confort et design. Son architecture soignée s’harmonise avec tous les extérieurs, créant un cocon parfait pour vos proches en quête d’indépendance. Une solution idéale aussi pour générer des revenus locatifs ou installer votre espace de travail dans un cadre inspirant.
Options & finitions
Personnalisation complète
- Possibilité de commander sans finitions intérieures
- Option sans salle de bain/cuisine pour un espace entièrement personnalisable
- Évolutivité : ajout possible d’une cloison à la commande ou ultérieurement
Façade
- Façade en revêtement de haute qualité. Coloris disponibles en bois teinte naturelle, bois brûlé, ou revêtement en métal effet miroir
- Option LED disponible pour avoir un éclairage extérieur
Sol
- Parquet flottant
- Plusieurs coloris au choix
- Installation professionnelle
Éclairage
- Spots LED encastrés dans la salle de bain
- Suspension design dans la pièce principale
- Éclairage indirect
Salle de bain pré-installée
- Configuration flexible : positionnement droite/gauche de la lodge
- Option PMR disponible
- Choix d’ajout de fenêtre
- Porte coulissante pour un gain de place
- Miroir LED rétroéclairé + spot intégré
- WC suspendu moderne
- Meuble vasque avec rangements intégrés
Cuisine pré-installée
- Pack tout équipé
- Option retour cuisine pour une plus grande surface de travail
- Personnalisation des coloris (façades et plan de travail)
- Électroménager inclus
- Rangements optimisés
Gagnez 20 m² d’espace de vie avec le studio de jardin Atlas lodges. Tout équipé, il offre tout le confort d’une maison : un espace de vie avec sa cuisine et une salle d’eau & WC. Idéal pour un investissement locatif ou pour héberger ses proches.
Le studio de jardin 20 m² Atlas lodges version studio possède tous les équipements pour y vivre en toute indépendance, en vacances ou à l’année. Équipé d’une cuisine et d’une salle d’eau/WC, le studio de jardin de 20 m² est idéal pour accueillir sa famille ou ses amis pendant les vacances, ou encore pour faire de la location.
La Atlas lodges est en version Studio est le modèle idéal pour profiter d’un studio de jardin spacieux et équipé, sans permis de construire.
Si vous recherchez un studio de jardin pour faire de la location, la Atlas lodges est parfaite. Livrée prête à vivre, elle vous permet de générer des revenus complémentaires immédiatement, en chambre d’hôtes ou en location étudiante par exemple. Vous n’avez plus qu’à poser vos meubles et profiter de votre nouvel espace ! Si vous souhaitez gagner du temps et habiter un studio de jardin meublé et décoré dès sa pose, découvrez notre prestations clé en main pour le meubler en 1 clic !
Ce studio de jardin de 20 m² est installé chez vous en 1 jour, sans permis de construire. Grâce à une construction industrialisée dans notre usine dans le centre de la France, le studio de jardin est livré déjà monté sur votre terrain. Une fois les raccordements (eau, électricité) effectués, vous pouvez profiter immédiatement de votre studio de jardin.
La structure ossature bois de nos studios de jardin vous garantit une isolation optimale et une qualité industrielle. Le plus : la Atlas lodges est repositionnable et déplaçable à l’infini.
Adresse : Av. du Montpellieret
34970 Lattes
Découvrez nos studios de jardin en bois !